ID CP2494073

Spatiu comercial de vanzare cartier Tractorul (zona noua)

ID CP2494073

325,000 € (negociabil)

Spațiu comercial de vânzare
Tractorul, Brasov
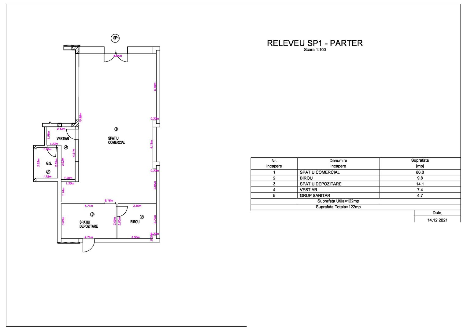
122 mp
2021

Va propunem spre vanzare, cu un potential imens de investitie, un spatiu comercial situat in zona noua a cartierului Tractorul, in apropiere de Coresi Shopping Resort, pe strada Stefan Baciu intersectie cu 1 Decembrie 1918.

Spatiul comercial este situat la parterul unui imobil de apartamente nou, construit in anul 2021, este liber de sarcini, intabulat pe persoana fizica, nefiind purtator de TVA. Cu o suprafata totala utila de 122 m2, fiind compus din 86 m2 spatiu deschis, 9.8 m2 birou, 14.1 m2 spatiu de depozitare, 7,4 m2 vestiar, 4.7 m2 baie cu dus, se preteaza la diverse tipuri de activitati: birouri, frizerie/coafura, farmacie, agentie de turism, cabinet avocatura, etc. In prezent in locatie functioneaza un magazin alimentar, existand posibilitatea preluarii acestuia cu tot cu mobilier si marfa (Atentie - nu se vinde SRL-ul!).

In fata imobilului exista in proprietate, cu carte funciara separata, 30 m2 care sunt folositi ca si locuri de parcare pentru clienti, iar in spatele spatiului exista un loc de parcare in plus, cu carte funciara separata, care este folosit pentru aprovizionare/management.

Imobilul este construit din caramida, cu materialte de calitate, avand geamuri termopan cu 3 foi de sticla si izolatie cu polistiren de 10 cm. Incalzirea si racirea spatiului se fac cu pompa de caldura marca Hyundai de 12kw, avand in plus si o centrala in condensatie pe gaz de 24kw pentru apa calda menajera, este dotat cu camere video, alarma, curent trifazic, si se poate recompartimenta in functie de cerintele noului proprietar. Dispune de autorizatie pentru firma luminoasa.

In zona spatiile comerciale se inchiriaza cu aproximativ €20+TVA/m2, randamentul acestei proprietati fiind peste 7%.

Pentru mai multe informatii si vizionari: 0785 025 025 Claudiu Blaj.

Pret: 325.000 euro negociabil.

Comision cumparator: 0%.

Citește mai mult

  • Tip imobil
    Bloc de apart.
  • Trafic pietonal
    Intens
  • Etaj
    Parter
  • Număr camere
    4
  • Număr băi
    1
  • Suprafață construită
    150 mp
  • Suprafață utilă
    122 mp
  • Front stradal
    6.65 m
  • Vitrină (m)
    6.65 m
  • Înălțime interioară
    2.8
  • Disponibilitate
    Imediat
  • Compartimentare spațiu
    Flexibil
  • Număr locuri parcare
    3
  • An construcție
    2021
  • Construcție nouă
    Da
  • Număr etaje clădire
    3
  • Are mansardă
    Da

Facilități

Acces pentru persoane cu dizabilități
Acces secundar marfă
Afișare logo pe clădire
Apă
Canalizare
Centrală termică
Contorizare separată
Curent
Echipamente moderne / silențioase
Gaz
Grupuri sanitare amenajate și utilate
Parcare biciclete
Parcare deschisă
Sistem de alarmă
Sistem de ventilație
Vestiar
Claudiu Blaj - VIP IMOB
Claudiu Blaj
agent imobiliar

+40785025025


Solicită chiar acum o vizionare
Telefon
Sună acum Solicită vizionare
Necesare:

Site-ul nu poate funcționa corect fără aceste cookie-uri. Vezi cookie-urile

Statistică:

Strângem statistici anonime despre voi, vizitatorii unici, pentru a vă îmbunătăți experiența dumneavoastră. Vezi cookie-urile

Marketing:

Pentru a ne promova mai eficient serviciile noastre, folosim cookies pentru a vă identifica și a vă oferi proprietăți și servicii personalizate. Vezi cookie-urile

Acest site folosește cookies, află detalii. Alege ce tipuri de cookies dorești să permitem: