ID CP2789817

Casă nouă în Bod, P+M, de vânzare "la alb" sau "la cheie"

ID CP2789817

158,000 €

Casă / Vilă cu 4 camere de vânzare
Bod
123.5 mp
2023

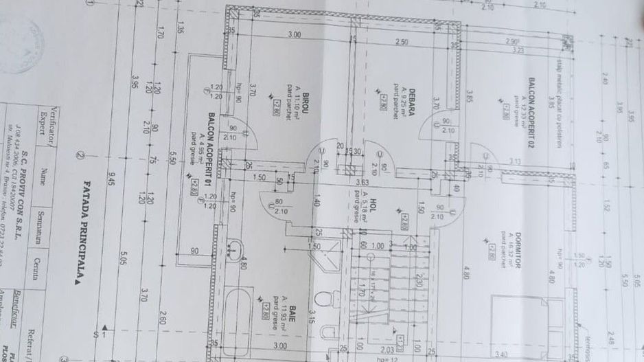
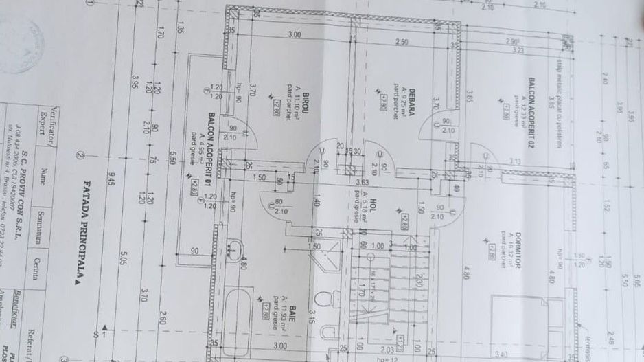
Vă oferim spre vânzare o casă individuală situată în localitatea Bod, pe strada Brașovului. Construită în anul 2023 din cărămidă, această proprietate are o suprafață utilă de 123 mp și o suprafață construită desfășurată de 186 mp. Terenul măsoară 520 mp, cu o deschidere de 18 m la o stradă pietruită.

Casa este dispusă pe parter și mansardă, având o compartimentată eficientă. La parter se află un living, o bucătărie cu un loc de servit masa, o baie, un spațiu tehnic, un hol, casa scării și o terasă. Mansarda este dedicată zonei de odihnă, incluzând trei dormitoare, o baie, un balcon, o terasă, un hol și casa scării.

Proprietatea oferă flexibilitate în achiziție, putând fi vândută în stadiul actual „la alb” (conform fotografiilor de prezentare). Alternativ, la solicitarea cumpărătorului, casa se poate preda finalizată „la cheie”, permițând personalizarea finisajelor (prețul pentru această variantă se va discuta separat).

În prezent, imobilul este branșat la curent electric (monofazic) și apă curentă, și dispune de fosă septică proprie. Curtea permite acces auto facil și amenajarea locurilor de parcare.

Un aspect important este accesul facil la linia de autobuz 420, care asigură legătura directă cu municipiul Brașov, facilitând astfel accesul rapid către oraș, păstrând în același timp liniștea și confortul locuinței.

Comision 0% pentru cumpărători. Pentru detalii suplimentare și programări la vizionare, nu ezitați să ne contactați.

Citește mai mult

  • Număr camere
    4
  • Dormitoare
    3
  • Număr bucătării
    1
  • Număr băi
    2
  • Număr balcoane
    1
  • Număr terase
    2
  • Disponibilitate
    Imediat
  • Tip casă
    Individual
  • Stare interior
    Nou
  • Suprafață utilă
    123.5 mp
  • Suprafață construită
    186 mp
  • Suprafață construită la sol (Amprentă)
    93.0 mp
  • Suprafață teren
    520 mp
  • Deschidere
    18.09 m
  • Acoperiș
    Tablă
  • Stadiu construcție
    Semifinisat
  • An construcție
    2023
  • Construcție nouă
    Da
  • Tip construcție
    Cărămidă
  • Are mansardă
    Da

Facilități

Apă
Curent
Ferestre PVC
Mijloace de transport în comun
Străzi pietruite
Ovidiu Stefan - VIP IMOB
Ovidiu Stefan
agent imobiliar

0720122133


Solicită chiar acum o vizionare
Telefon
Sună acum Solicită vizionare
Necesare:

Site-ul nu poate funcționa corect fără aceste cookie-uri. Vezi cookie-urile

Statistică:

Strângem statistici anonime despre voi, vizitatorii unici, pentru a vă îmbunătăți experiența dumneavoastră. Vezi cookie-urile

Marketing:

Pentru a ne promova mai eficient serviciile noastre, folosim cookies pentru a vă identifica și a vă oferi proprietăți și servicii personalizate. Vezi cookie-urile

Acest site folosește cookies, află detalii. Alege ce tipuri de cookies dorești să permitem: