ID CP2184194

Case individuale în Sânpetru, cu teren 400 mp și toate utilitățile

ID CP2184194

170,000 € TVA inclus

Casă / Vilă cu 3 camere de vânzare
Sanpetru
117.91 mp
2025

Vă propunem spre achiziție locuințe în viitorul ansamblu rezidențial Avantaj Sânpetru 4. Proiectul oferă 32 de case individuale, construite pe structură de cărămidă, ce îmbină designul contemporan cu funcționalitatea. Proprietățile oferă un echilibru între liniștea zonei Sânpetru și accesul facil către facilitățile urbane ale Brașovului.

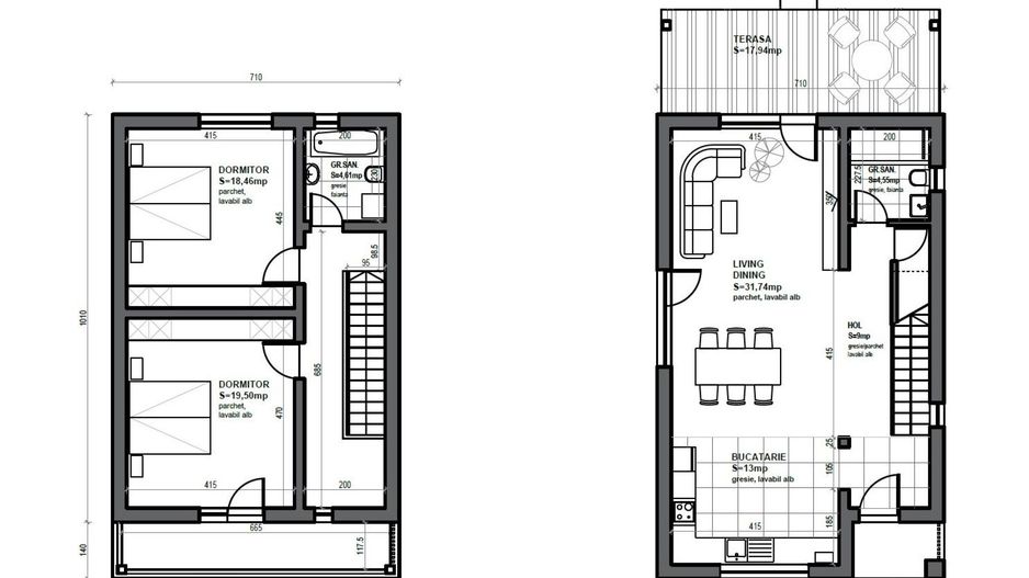
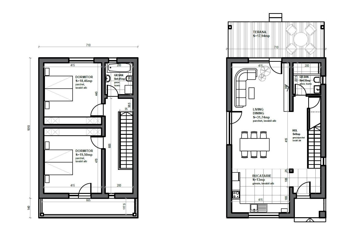
DETALII TEHNICE ȘI COMPARTIMENTARE

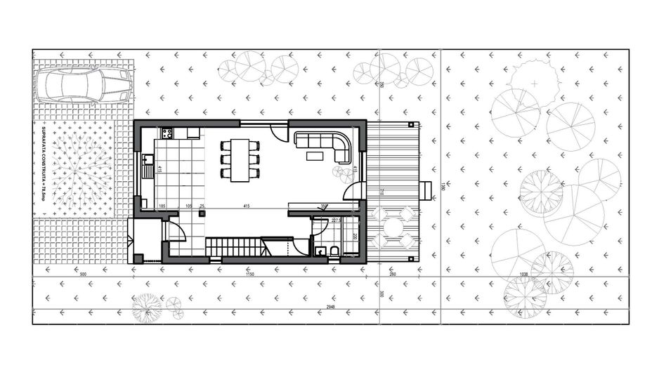
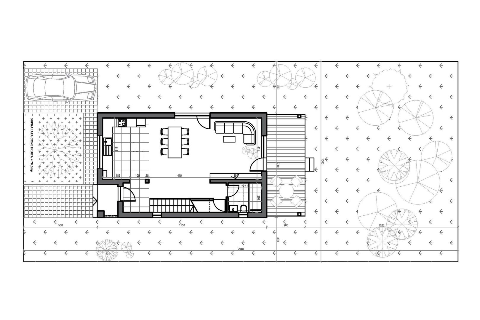
Fiecare casă dispune de o suprafață utilă de aproximativ 118 mp, fiind desfășurată pe parter și mansardă, pe un teren propriu de 400 mp.

- Parter: Cameră de zi, zonă de luat masa, bucătărie de tip open-space, terasă, baie, hol și casa scării.

- Mansardă: Două dormitoare spațioase, baie, hol și balcon.

Construcția este axată pe eficiență termică și durabilitate: izolație exterioară cu polistiren de 10 cm, vată bazaltică la mansardă și tâmplărie PVC cu geam termopan (trei foi de sticlă) pentru o izolare fonică și termică optimă.

DOTĂRI ȘI FINISAJE

Casele se vor preda finisate la cheie, pregătite pentru mobilare:

- Finisaje: Parchet, gresie, faianță și băi echipate cu obiecte sanitare moderne.

- Sistem de încălzire: Centrală termică proprie pe gaz și încălzire prin pardoseală, asigurând o distribuție uniformă a căldurii în toată locuința.

- Utilități complete: Gaz, apă curentă, canalizare și curent electric.

LOCALIZARE ȘI ACCESIBILITATE

Amplasarea ansamblului este un avantaj major pentru familiile active:

- La doar 700 m de Grădinița cu program prelungit și Școala Gimnazială din Sânpetru.

- La 1 km de stația de autobuz (liniile 411, 412, 420), care asigură legătura rapidă cu municipiul Brașov.

CONDIȚII DE ACHIZIȚIE

Vânzătorul este persoană juridică, oferind claritate și siguranță procesului de achiziție.

Preț: Include TVA de 21%.

Comision: 0% pentru cumpărători.

Se acceptă plata prin credit bancar.

CONTACT

Pentru mai multe informații despre stadiul lucrărilor, prețuri sau pentru a programa o vizită la locație, vă stăm la dispoziție.

Citește mai mult

  • Număr camere
    3
  • Dormitoare
    2
  • Număr bucătării
    1
  • Număr băi
    2
  • Număr balcoane
    1
  • Număr terase
    1
  • Număr locuri parcare
    1
  • Disponibilitate
    Imediat
  • Tip casă
    Individual
  • Stare interior
    Finisat clasic
  • Suprafață utilă
    117.91 mp
  • Suprafață construită
    150.21 mp
  • Suprafață construită la sol (Amprentă)
    78.0 mp
  • Suprafață teren
    400 mp
  • Suprafață terasă
    25 mp
  • Deschidere
    13.6 m
  • Acoperiș
    Tablă
  • Stadiu construcție
    În construcție
  • An construcție
    2025
  • Construcție nouă
    Da
  • De la dezvoltator
    Da
  • Tip construcție
    Cărămidă
  • Are mansardă
    Da

Facilități

Acoperiș
Apă
Apometre
Canalizare
Centrală proprie
Contor electric
Contor gaz
Curent
Faianță
Gaz
Gresie
Încălzire prin pardoseală
Izolație exterioară
Izolație interioară
Mijloace de transport în comun
Nemobilat
Parchet
Străzi pietruite
Vopsea lavabilă
Ovidiu Stefan - VIP IMOB
Ovidiu Stefan
agent imobiliar

0720122133


Solicită chiar acum o vizionare
Telefon
Sună acum Solicită vizionare
Necesare:

Site-ul nu poate funcționa corect fără aceste cookie-uri. Vezi cookie-urile

Statistică:

Strângem statistici anonime despre voi, vizitatorii unici, pentru a vă îmbunătăți experiența dumneavoastră. Vezi cookie-urile

Marketing:

Pentru a ne promova mai eficient serviciile noastre, folosim cookies pentru a vă identifica și a vă oferi proprietăți și servicii personalizate. Vezi cookie-urile

Acest site folosește cookies, află detalii. Alege ce tipuri de cookies dorești să permitem: