ID CP3051964

Apartament 2.5 Camere Sala Polivalentă | 61 mp Util + 10 mp Balcon

ID CP3051964

130,500 € + 21% TVA

Apartament cu 3 camere de vânzare
Bartolomeu, Brasov
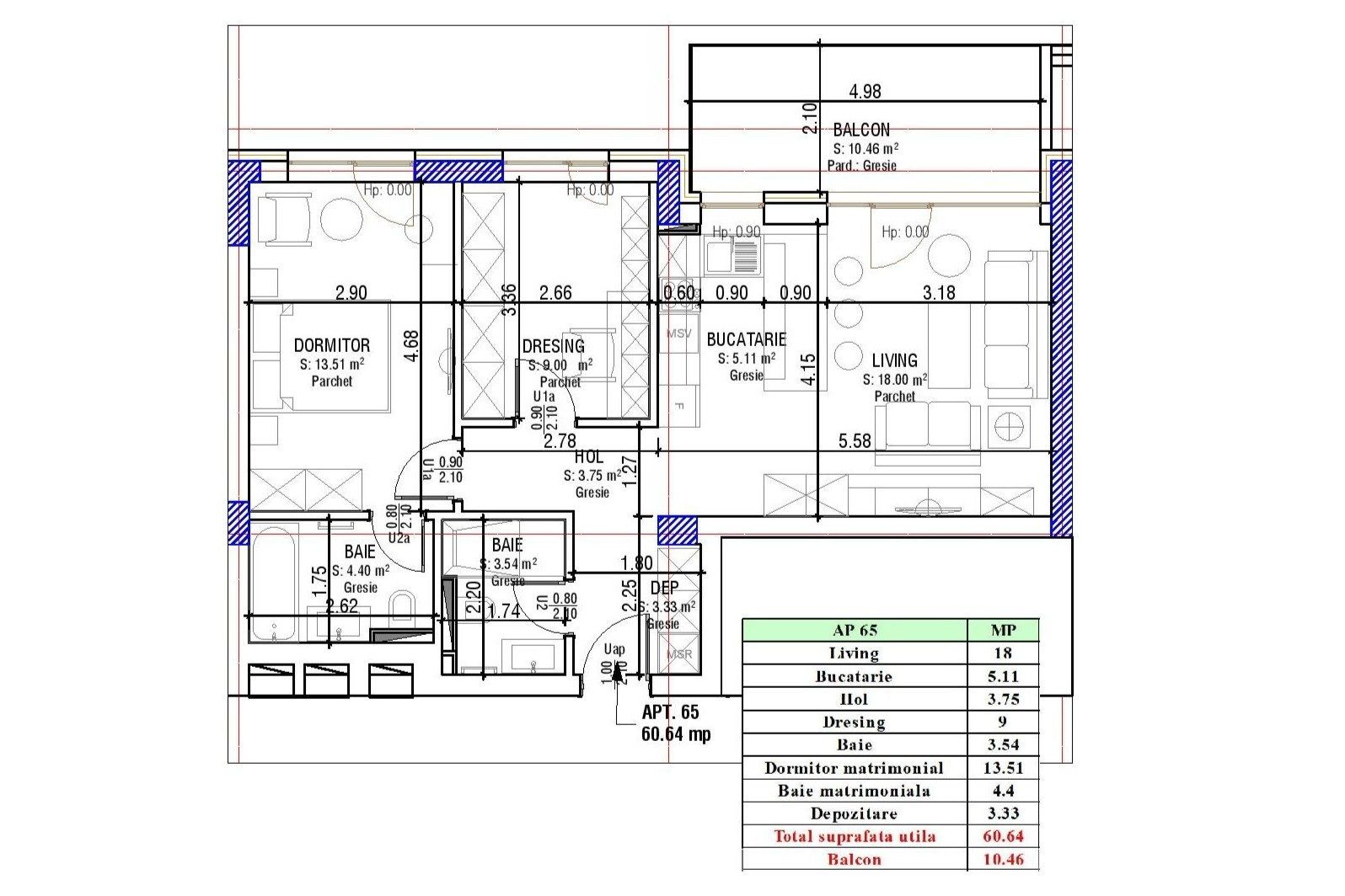
60.64 mp
2026

Vă propunem spre achiziție un apartament cu 2,5 camere, situat în zona Bartolomeu, în imediata apropiere a viitoarei Săli Polivalente. Locuința se află la etajul 6 al unui imobil cu 8 niveluri, echipat cu două lifturi moderne, fiind o opțiune excelentă pentru familii sau pentru cei care au nevoie de un spațiu suplimentar pentru lucru.

DETALII TEHNICE ȘI COMPARTIMENTARE

Apartamentul are o suprafață utilă de 61 mp și un balcon de 10 mp. Interiorul este organizat practic și cuprinde o cameră de zi cu bucătărie deschisă și ieșire pe balcon, un dormitor, o încăpere suplimentară ce poate fi folosită ca dressing sau birou, 2 băi (o baie cu cadă și o baie cu duș), hol și balcon. Această structură este gândită să folosească util fiecare metru pătrat, oferind spații separate pentru odihnă și activități zilnice.

DOTĂRI ȘI FINISAJE PREMIUM

Locuința se predă „la cheie” și include dotări tehnice moderne pentru un confort sporit:

- Climatizare și Încălzire: Sistem de aer condiționat multi-split montat și sistem de încălzire prin pardoseală.

- Tehnologie: Pregătire pentru Smart Home (videointerfon și controlul temperaturii) și centrală termică de bloc dotată cu modul termic de control și contorizare individuală.

- Materiale: Parchet SPC rezistent la apă, geamuri cu trei foi de sticlă și obiecte sanitare incluse în baie.

LOCALIZARE

Poziționarea imobilului în zona de vest a Brașovului asigură acces rapid către punctele de interes:

- Centrul Istoric: Conexiune facilă atât cu autoturismul personal, cât și prin rețeaua de transport în comun.

- Cumpărături: Centrele comerciale LIDL și Auchan în imediata vecinătate.

- Transport: Proximitate față de Terminalul Municipal, Gara Bartolomeu și Aeroportul Ghimbav.

- Agrement: Viitoarea Sală Polivalentă și Paradisul Acvatic în zonă.

SUSTENABILITATE

Clădirea este proiectată pentru eficiență energetică, utilizând panouri fotovoltaice pentru a acoperi consumul electric din spațiile comune. Acest sistem, completat de izolarea exterioară și tâmplăria performantă, asigură o reducere a costurilor de administrare și un confort termic optim pe tot parcursul anului.

CONDIȚII FINANCIARE

Vânzarea se face prin cesiune de antecontract, în următoarele condiții:

- Modalitate de plată: Se acceptă plata din surse proprii sau prin credit ipotecar.

- Avans: 35% din valoarea locuinței la momentul cesiunii.

- Finalizare: Termenul estimat este 30 septembrie 2026.

- Comision: 0% pentru cumpărător.

- Parcare: Locul de parcare exterior se achiziționează separat.

CONTACT

Pentru mai multe detalii, informații despre preț și programarea unei vizionări la locație, vă rugăm să ne contactați.

De asemenea, dacă doriți să consultați și alte tipuri de oferte disponibile în cadrul acestui ansamblu (studiouri sau apartamente cu 2, 2.5, 3 și 4 camere), vă putem trimite lista completă la cerere.

Citește mai mult

  • Tip apartament
    Apartament
  • Compartimentare
    Decomandat
  • Număr camere
    3
  • Dormitoare
    2
  • Număr bucătării
    1
  • Număr băi
    2
  • Etaj
    6
  • Suprafață utilă
    60.64 mp
  • Suprafață totală
    71 mp
  • Disponibilitate
    30.09.2026
  • Orientare
    Vest
  • Confort
    1
  • Stare interior
    Nou
  • Număr balcoane
    1
  • Imobil
    Bloc de apart.
  • Stadiu construcție
    În construcție
  • An construcție
    2026
  • Construcție nouă
    Da
  • Tip construcție
    Cărămidă
  • Număr etaje clădire
    8

Facilități

Apă
Apometre
Bucătărie deschisă
Canalizare
Centrală imobil
Contor electric
Contor gaz
Curent
Faianță
Ferestre PVC
Gaz
Geamuri tripan
Iluminat stradal
Încălzire prin pardoseală
Internet
Izolație exterioară
Mijloace de transport în comun
Nemobilat
Străzi asfaltate
Vopsea lavabilă
Ovidiu Stefan - VIP IMOB
Ovidiu Stefan
agent imobiliar

0720122133


Solicită chiar acum o vizionare
Telefon
Sună acum Solicită vizionare
Necesare:

Site-ul nu poate funcționa corect fără aceste cookie-uri. Vezi cookie-urile

Statistică:

Strângem statistici anonime despre voi, vizitatorii unici, pentru a vă îmbunătăți experiența dumneavoastră. Vezi cookie-urile

Marketing:

Pentru a ne promova mai eficient serviciile noastre, folosim cookies pentru a vă identifica și a vă oferi proprietăți și servicii personalizate. Vezi cookie-urile

Acest site folosește cookies, află detalii. Alege ce tipuri de cookies dorești să permitem: