ID CP2081970

Casă individuală nouă, modernă, în Sânpetru, zona Triaj

ID CP2081970

398,000 €

Casă / Vilă cu 4 camere de vânzare
Sanpetru
235.89 mp
2023

Vă prezentăm o casă individuală de vânzare, situată în localitatea Sânpetru, zona Triaj, pe strada Șoimului. Construită în anul 2023 din cărămidă, casa oferă o suprafață utilă de 236 mp și terase de 66 mp, având o amprentă la sol de 186 mp. Proprietatea dispune de un teren generos de 915 mp, cu acces la o stradă pietruită.

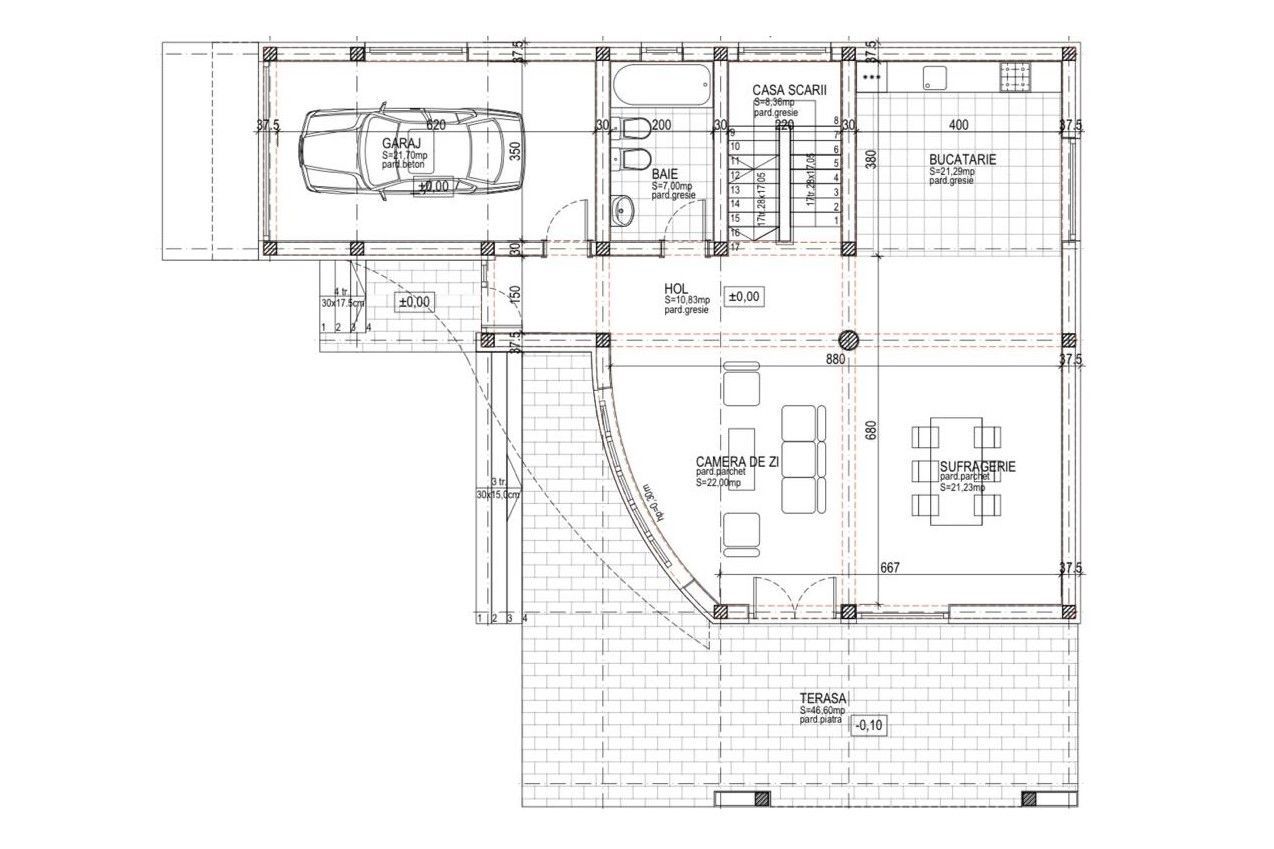
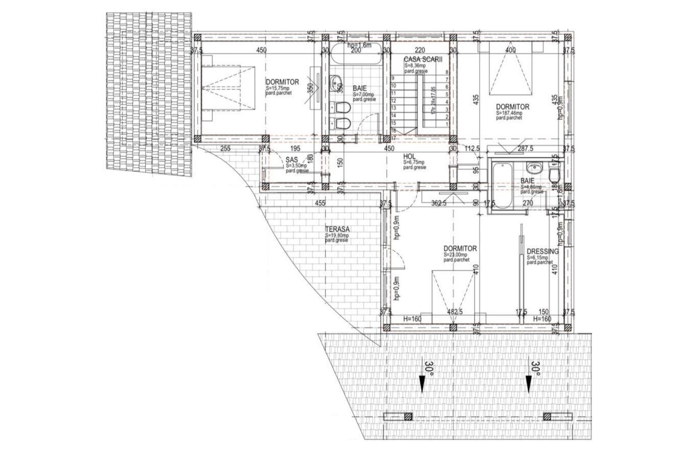
Construcția este organizată pe subsol, parter și mansardă, oferind un spațiu bine structurat și funcțional. La subsol găsim zona tehnică și spațiu de depozitare pentru alimente. Parterul cuprinde o cameră de zi, bucătărie, loc de servit masa, baie, garaj, hol, casa scării și o terasă acoperită de 46 mp. La mansardă se găsește dormitorul matrimonial cu baie proprie și dressing, având acces la o terasă, iar separat găsim două dormitoare pentru copii, baie, hol și casa scării.

Casa este izolată termic cu polistiren (EPS 100) și are ferestre cu geamuri termopan (3 foi) și tâmplărie PVC (9 camere). De asemenea, este echipată cu un sistem de supraveghere video, iar interiorul este finisat cu gresie, faianță și parchet, iar dormitoarele cu mochetă.

Încălzirea și apa caldă menajeră sunt asigurate de o pompă de căldură și o centrală termică pe gaz, iar sistemul de încălzire este prin pardoseală. Proprietatea este echipată și cu panouri solare de 10 kW, baterii de stocare de 11,6 kW, generator trifazic, apă forată de la 43 m și fosă septică.

Casa se vinde mobilată și utilată conform fotografiilor. Proprietatea dispune și de un foișor închis de 18 mp și o grădină amenajată, iar curtea este dotată cu sistem de irigație pentru gazon.

Pentru cumpărători, comisionul este 0%. Pentru mai multe detalii și programări pentru vizionare, nu ezitați să ne contactați.

Citește mai mult

  • Număr camere
    4
  • Dormitoare
    3
  • Număr bucătării
    1
  • Număr băi
    3
  • Număr balcoane
    1
  • Număr terase
    1
  • Număr garaje
    1
  • Număr locuri parcare
    3
  • Disponibilitate
    Imediat
  • Tip casă
    Individual
  • Stare interior
    Finisat modern
  • Suprafață utilă
    235.89 mp
  • Suprafață construită
    301 mp
  • Suprafață construită la sol (Amprentă)
    186.0 mp
  • Suprafață teren
    915 mp
  • Suprafață terasă
    66 mp
  • Deschidere
    30 m
  • Acoperiș
    Tablă
  • Stadiu construcție
    Finalizată
  • An construcție
    2023
  • Construcție nouă
    Da
  • Tip construcție
    Cărămidă
  • Număr subsoluri
    1
  • Are mansardă
    Da

Facilități

Bucătărie deschisă
Bucătărie utilată
Centrală proprie
Curte
Faianță
Garaj
Grădină proprie
Gresie
Încălzire prin pardoseală
Irigații
Izolație exterioară
Mobilat complet
Mochetă
Parchet
Pivniță
Pompă de căldură
Străzi pietruite
Vopsea lavabilă
Ovidiu Stefan - VIP IMOB
Ovidiu Stefan
agent imobiliar

0720122133


Solicită chiar acum o vizionare
Telefon
Sună acum Solicită vizionare
Necesare:

Site-ul nu poate funcționa corect fără aceste cookie-uri. Vezi cookie-urile

Statistică:

Strângem statistici anonime despre voi, vizitatorii unici, pentru a vă îmbunătăți experiența dumneavoastră. Vezi cookie-urile

Marketing:

Pentru a ne promova mai eficient serviciile noastre, folosim cookies pentru a vă identifica și a vă oferi proprietăți și servicii personalizate. Vezi cookie-urile

Acest site folosește cookies, află detalii. Alege ce tipuri de cookies dorești să permitem: